定量装车系统是危化品智能储运行业里为了提高装车过程的安全性以及装车效率,有效保障计量精度,减轻操作工人的劳动强度而开发的一种自动智能化计量系统。本文通过总结当前常用的火车定量装车工艺,提出了一套单台流量计实现多个鹤管定量装车的新工艺,该工艺自动化水平高,且节省了大量投资。
0.引言
定量装车系统在危化品智能储运行业已经应用多年,其装车控制技术、计量技术、安全保障技术已经很成熟。常用的工艺是1套鹤管配置1台泵、1台装车阀、1台流量计、1套静电溢油保护器、1 台装车仪及 1套上位机系统构成 1套定量装车系统,就可以很好地实现装车自动化计量控制及管理。但是,当前人力成本的不断增高,企业既要减少投资成本,又要提供效率的愿望非常强烈,如何能互为兼顾,
本人认为主要还是从工艺上进行优化设计,才能从根本上解决问题。
本文主要针对某某油库铁路装车系统改造项目论述了项目改造的需求、技术创新路线以及改造后带来的效益,为企业的生产过程提供一个安全保障的同时也提供了生产效率,并最终实现生产过程的信息化,数字化。
1.项目背景
1.1项目来源及现状
该油库铁路装车目前有 25个装车鹤管,整个装车过程基本上采用人工检尺计量,目测控制发油量,所以装车效率低,装车控制精度低,工人劳动强度大,最重要的是装车过程没有安全保障。针对上述问题,决定对传统铁路装车方式进行改造。
1.2 项目改造的必要性
1.2.1 安全生产的需求
化工油品生产属于高危行业,生产过程必须采用测控仪表进行全程监控,而该项目并未配套相关的测控仪表,完全靠人工操作完成,特别是计量部分还靠人工目测,相当于与危化品直接接触,对人体的伤害是不可避免的,生产过程已经无法满足安全生产的必须条件。
1.2.2 计量精度的需求
铁路装车是一个计量过程,计量的精度会影响到生产过程的安全性及贸易交接的准确性,计量不准确会导致溢油,产生安全事故,而当前是靠人工计量,计量精度无法做到准确,已经无法满足当前生产过程的信息化及数字化时代。
1.2.3 生产效率的需求
当前是一个追求效率的时代,效率的高低会决定1个企业发展前景,如果生产过程依然完全依赖于人工,1个装车流程启动就要几分钟才能完成,装车结束还得靠人工慢慢去测量,很难提高生产效率。如果能采用当前的测控仪表,装车流程启动几秒钟就完成,装车结束同样几秒钟也可以完成,对生产效率的提高是非常有必要的,所以必须要改变当前局面。
1.2.4 生产成本控制的需求
虽然当前项目存在诸多问题,采用目前的成熟自动装车控制技术完全可以解决以上问题,但是如果按传统的做法,1个装车鹤管要配1套自控检测仪表,总共25个装车鹤管,成本是相当高,所以要想能安全经济地完成项目改造,需要提出1个更加可行的方案。
1.3项目改造的可行性
1.3.1 安全技术的应用
实现化工油品灌装过程自动化的技术已经有几十年的应用,是非常成熟、稳定可靠的,在这个过程中由工业级自控设备、高精度测控仪表组成一个控制系统,可以实现一键式的全自动化灌装过程,在灌装过程中配套的静电溢油检测仪表,可以在出现静电异常、灌装溢出或通过人工操作急停按钮后发出信号,由自控设备自动急停关断装车过程,完全克服了人工灌装过程中不可控的安全因素。
1.3.2 测控一体化技术的应用
在化工油品灌装过程中要想实现过程的自动、灌装计量的高精度,在控制工艺上需要配置计算机管理系统、装车控制仪设备(装车控制仪的控制核心采用PLC)、自动关断设备(泵、阀)、高精度仪表(质量流量计)、流量调控设备(装车电液阀),安全保障设备(静电溢油保护器、急停按钮)等,从而构成了一体化的管理、控制、检测灌装系统。首先由管理系统发出灌装指令,其次装车控制仪启动灌装过程,在线检测灌装量,并根据灌装指令决定是否结束灌装,安全保障设备在整个灌装过程检测异常,发出信号,装车控制仪自动急停灌装过程。
通过采用测控一体化的技术,整个灌装过程完全实现自动化,一键式启动,系统根据高精度计量数据,自动结束灌装过程,不断提高整个生产效率,同时完全可以减配现场操作人员,甚至通过对司机的简单培训,整个灌装过程完全由司机一个人完成。
1.3.3 优化的控制工艺
在传统的化工油品灌装控制工艺里,1个装车鹤管的灌装需要配置1整套的设备,如1台定量装车仪、1台流量计、1台装车泵、1台装车控制阀、1套静电溢油保护器,还有计算机管理系统,那么新河分库铁路装车有25个装车鹤管,相当于要25套设备及一套计算机管理系统,成本是相当高的。本文的创新点主要是在控制工艺上进行优化,每5个鹤管配置一个定量装车仪、2台质量流量计、2台装车阀、5个工艺切断阀,25个鹤管配置2台泵,25个鹤管配置25套静电溢油保护器,整个灌装系统配置1套集中式PLC系统及计算机管理系统。灌装过程由计算机管理系统发出灌装指令,装车控制仪根据灌装指令,控制5个鹤管的灌装顺序并实现每个鹤管的灌装过程,并向PLC系统发出灌装信号,由PLC系统控制灌装泵的出口流量,从而实现了储罐到槽车全自动批量灌装过程,同时节省了整个项目改造的成本。
2.项目改造技术创新路线
2.1系统的配置及功能
定量装车控制系统配置1套上位机系统(即计算机管理系统),由计算机操作站、UPS电源、通讯设备及打印机组成,主要功能是在灌装前生成灌装指令,比如设定每个槽车对应的灌装鹤管及要灌装的介质品种、每个鹤管的灌装预设量及灌装顺序等信息,灌装结束后储存灌装数据,并生成各种统计报表。
灌装过程集中控制系统配置1套PLC自控系统,系统由PLC产品及集成机柜组成,PLC自控系统根据现场装车控制仪的信号,控制装车泵的启停,调节泵的出口流量。
现场配置定量装车仪、质量流量计、装车阀、鹤管工艺切断阀、静电溢油保护器,装车控制仪根据上位机系统发出灌装指令,确定5个鹤管的灌装顺序,装车控制仪只要一次人工启动,根据先开阀后启泵原则,先根据鹤管顺序,打开鹤管上的工业阀门,流量计后端的装车阀门,同时向PLC系统发出启动信号,逐个完成每个鹤管的自动灌
装过程。每次灌装结束,自动把灌装数量回传给上位机系统,如图1所示。

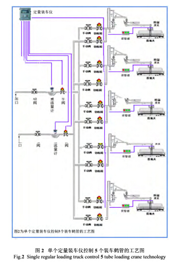
2.2单个定量装车仪控制工艺图

图2为单套定量装车仪控制2个油品、2个流量计、5套装车鹤管的装车工艺。在装车前由系统设定本次装车的品种、5个槽车的预设量、5个槽车的装车顺序等装车信息,装车时在装车仪上按启动按钮,装车仪根据装车信息打开对应的装车阀以及装车泵,读取流量计的累计量,当该套鹤管装车完成,自动关闭对应的阀门,然后自动打开下一个装车阀,逐个完成5套鹤管的装车,做到一键启动,一次性完成5套鹤管的装车,整个装车过程不需要人为干预。
2.3整体装车控制工艺图

图3为该项目的完整工艺,25套鹤管配置5套装车仪、2个装车泵、一套装车泵变频调节PLC系统,除了实现单个装车仪控制5套鹤管装车外工艺外,还实现单个泵可以同时为5个装车仪的装车,PLC系统同时会根据当前正在装车的鹤管实时调节泵的出口流量,保证装车速度。
2.4灌装流程

2.5灌装流程说明
1)槽车进厂前,在上位机系统制单,生产灌装指令,录入客户名称,每个鹤管的灌装油品、预设量及其在每个装车控制仪的灌装顺序等信息,然后打印装车单。
2)槽车进入装车区指定装车位,现场操作人员依次放好装车鹤管和防溢流探头,接好静电接地夹,接地不符合要求时,不能装车并同时报警。
3)现场操作人员确认所有连接准备就绪后,在装车控制仪上输入提油密码,密码验证正确,装车控制仪从上位机系统一次性读取灌装指令,操作人员按“启动”按钮开始装车。( 注:在装车前期,只有当 “静电接地和溢流信号”良好时,才能够启动装车,否则不能启动装车。)
4)装车开始,装车控制仪根据灌装顺序打开一个鹤管的工艺阀门,按小开度打开装车阀门,同时根据灌装油品向PLC 系统发出开泵指令,要求启动相应油品的灌装泵,PLC 控制系统启动灌装泵,进入第一段小流量装车,根据流量大小或延时一定时间后装车控制仪给阀门信号使阀门全开,进入正常装车状态。流量计发出流量信号给装车控
制仪,装车控制仪显示瞬时流量和累计流量,并把数据发送给控制室装车监控站。
5)装车过程中,当静电信号异常或防溢流开关检测到液位达到指定高度时或操作现场急停按钮后,会发出报警。
装车控制仪保持当前状态,并暂停装车,关闭所有泵及阀。在事故处理完成,可以继续灌装的情况下,按装车控制仪启动键,装车控制仪延续上次状态继续灌装。
6)当将要达到第第一段关阀设定量后,装车控制仪发出第一段关阀信号,使阀关到一定小开度,根据流量大小或延时一段时间,进行小流量控制,当达到最后一段关阀设定量后,装车控制仪发出装车结束信号,上位机保存灌装数据,关闭阀门,发出停泵信号。
7)当某一个鹤管灌装完成,装车控制仪自动判断是否还有其他鹤管未灌装完成。如果有装车按第4步,自动灌装,直到所有鹤管灌装完成,上位机保存灌装数据。
8)操作人员取下静电接地夹,收回鹤管和防溢流探头。
9)槽车开离装车鹤位,来到装车控制室办结算业务。
2.6灌装工艺特点
2.6.1 上位机系统集中管理
对于装车项目,要求 24h不间断实现装车,所以装车监控管理软件是按 C/S结构来设计,即 2套装车操作站在正常情况下运行相同的监控管理软件,数据实时更新,同步存储。即使在任何 1套操作站出现异常的情况下,另外1套操作站能稳定可靠地运行,当出现异常的操作站恢复运行后,通过点击先前运行的操作站的一个恢复按钮,数据自动同步到出现异常的操作站,这个过程由软件自动完成。
为了确保监控管理软件能稳定可靠地运行,装车监控管理软件通过技术工程师的软件开发,来完成现场数据的采集和存储、工艺流程画面显示、生产过程监控、数据管理、数据库接口和查询、生产报表的生成、各种格式装车票据设计、各种装车数据报表查询、油品及车辆管理报表等功能。
1)装车监控功能
装车监控:装车监控系统是对各个装车鹤位的装车状态进行监视和控制,监视对象是装车控制仪的控制模式和装车状态,装车站流量计的累计量和瞬时流量、阀门以及静电溢油开关的状态等,控制部分主要是装车控制仪的控制模式,装车控制仪的远程装车操作(即开票操作),装车状态的复位以及对出票的打印等。如图5所示。

2)装车开单功能
在一个槽车来装车前,必须先开单,把需要装车的信息准确无误地录入到装车系统中,否则无法装车或者装错车。该操作是整个装车系统最为重要的一个环节,一定要认真、细致完成。

3)装车数据统计及报表功能
报表管理系统主要功能有提货客户维护、操作员维护、数据库备份恢复、装车记录报表查询、未装车记录查询等功能。装车数据统计及报表是上位机系统最重要的功能之一,通过有效的数据存储,可以按品种统计出货数量,按时间统计各品种的出货数量,也可以按班次统计各品种的出货数量,并形成实时报表和历史报表。
2.6.2 装车泵变频调节
在本项目中,装车泵的配置按油品种类来配置,而非传统的按装车鹤管配置,每个油品配置2个泵,采取1备1用的方式,在泵工作正常情况,只用 1个泵灌装,每个泵的出口流量按 5个装车控制仪同时灌装最大流量设计,泵的控制配置变频控制柜,变频控制柜根据5个装车控制仪的正在装车的数量自动调节泵的出口流速。
通过泵控工艺的优化,整个项目不但节省了投资,而且在任何时候都能保证装车流速,总体上提供整个灌装过程的效能。
2.6.3装车鹤管支持多品种灌装
在传统的装车项目中,装车鹤管灌装的油品基本上固定,1种油品对应1个固定的鹤管,功能单一,导致在鹤管前端需要配置一套完整的装车控制设备。而在本项目中,25个灌装鹤管可以在某一时刻灌装其中一种油品,在另外一个时刻灌装另外一种油品。通过缩短鹤管与装车阀的距离,装车结束后,预留在装车阀与鹤管之间的油品并不多,
可能只有几十升,相对于槽车几十万升的灌装量,影响不大。
另外本项目25个灌装鹤管按每5个鹤管一组,配置1套装车控制仪,由装车控制仪根据5个鹤管的灌装顺序完成自动灌装过程,中间只是在每个鹤管上加上1个工艺切断阀,由装车控制仪灌装前确定先开哪个切断阀,相互各不影响。完全可以实现批量灌装的过程,大大提高了灌装效率。
2.6.4 装车控制仪多鹤管控制
在传统的装车项目中,1个灌装鹤管需要配置1个装车控制仪进行灌装,虽然配置看上去是简单了,但是总体投资成本高。而装车控制仪的产品在市场上的应用已经超过了30多年,特别是采用PLC为控制核心装车控制仪的稳定性、可靠性已经相关高,技术也很成熟。完全可以配1个装车控制仪控制多个鹤管。
本项目中,25个鹤管只配置了5套装车控制仪,每个装车控制仪控制5个鹤管灌装,在同一时刻该组的鹤管只有1个鹤管在灌装,整个装车栈桥有5个鹤管同时灌装。
每个装车控制仪采用一键式灌装,即第一次启动时需要人为按启动键,开始灌装,当第一鹤管灌装完成,装车控制仪会自动判断本组鹤管是否还有其他鹤管需要灌装。如果有,打开需要灌装鹤管的工艺切断阀,发出启泵信号,自动完成灌装过程,直到所有鹤管灌装完成,都不需要人为干扰,达到批量灌装的功能。
2.6.5 高精度计量
为了有效保障每个灌装过程顺利完成,灌装计量精度、过程的稳定性非常重要,如果精度不高,对于火车灌装来说是非常麻烦的,会导致最终的贸易计算无法进行,灌装过程的不稳定性,会导致过程需要人为干预,降低灌装效率。
本项目中,灌装计量才有当前最先进的高准科里奥利原理的质量流量计,该质量流量计全过程的计量精度可以达到0.1%,低于国家标准0.3%,完全可以作为贸易结算的依据。另外该质量流量计计量的稳定性相当高,不受环境温度影响,直管段计量,不受杂质影响。另外该质量流量计不但可以计量质量、体积,还可以测量当前流过介质的密度、温度、压力等参数。
为了节省投资,在本项目中,流量计的配置没有按鹤管数量进行配置,而是根据油品配置,每组鹤管只配置柴油流量计和汽油流量计。当进行柴油灌装时,装车控制仪只读柴油流量计的数据;当进行汽油灌装时,只读汽油流量计的数据,相互独立,互不影响。25个鹤管分成5组,每组配置2个流量计。
2.6.6 安全联锁保障
化工油品属于危化品,灌装过程的安全性非常重要,因为灌装过程是介质高速流动的过程,当灌装到槽车时,由于高速流动与槽车内部产生摩擦,会产生静电。如果产生的静电不及时与接地系统连接,随着静电集聚到一定量,当一个燃点过来,就会产生爆炸,非常危险,所以每个鹤管必须配置静电保护装置,避免静电产生安全事故。
灌装过程除了要防止静电的聚集,同时也要防止溢油现象,灌装过程如果产生溢油,一个燃点必然导致燃烧,如果溢油达到一定浓度,就会产生爆炸,也是非常危险的;另外溢油还会带来经济损失,甚至污染环境,所以每个鹤管必须配置溢油保护装置,来避免不必要的事故发生。
本项目25个鹤管,配置了25套静电溢油保护装置,为整个灌装过程提供了安全保障。
2.6.7 PLC 控制系统的集中控制
本项目采取的集中式管理及控制,分布式灌装过程的系统,集中式控制主要是PLC控制系统,由于25个鹤管要实现高速有效的灌装过程,需要配置一套PLC控制系统,对整个灌装过程的流量进行统一调节。
PLC控制系统主要采集现场各装车控制仪的数据,然后控制泵的变频控制系统,实时调节泵的出口流速,避免灌装过程的超流速或低流速的灌装过程。5个鹤管同时灌装时,流速最大,而每个鹤管的灌装结束时间是不可预见的,如果不能很好地调节流速,当某个或几个鹤管同时结束时,流速不能及时降低,将导致正在灌装鹤管的压力突然增大,产生剧烈震动,可能会损坏流量计、装车阀,甚至导致安全事故的发生。如果灌装过程中突然增加几个鹤管需要灌装,流速不及时增大,会导致正常灌装的流速降低,影响整体的装车效率。
2.6.8 批量式灌装过程
通过鹤管分组、集中管理及控制、分布式灌装,25个鹤管实现了一次性制订灌装指令,每个装车控制仪获取5个鹤管的灌装信息后,一键式启动,分批次自动完成灌装过程,有效地提高了灌装效率。
3.项目改造后的成果效益
由于本项目的改造并非采取传统灌装模式,而是从传统灌装模式总结经验并借助于当前先进、稳定、可靠的技术,对灌装模式进行一次革新,突破传统,在化工油品灌装行业属于首创。通过这次项目改造,可以从表2中体现出非常可观的经验效益。

4.结束语
总之,一个系统的性价比如何,除了要充分利用当前的最新技术,还要根据用户需要,实地考察,多和用户进行技术及经验交流,才能设计出一套既能满足用户迫切需求,又能向前发展的工艺。