质量流量计在沥青定量装车中的应用
利用质量流量计通过控制仪器来实现沥青的定量装车,节省了人力,提高了装车的精度,为无人值守定量装车打下了良好的基础。
1 .沥青装车、出厂流程
我厂以前的沥青装车、出厂的流程为:
(1)装沥青的车辆在地磅过皮重,过皮重时过衡人员要对车辆进行盘查,防止带水、带人等作弊手段。
(2)在沥青装车点装车时,装车量依靠人工观察控制,容易造成超装或者少装,严重情况有可能会导致沥青溢出,发生事故。
(3)装车完毕再次过衡,记录毛重,没有问题即可打票出厂。
2.沥青定量装车系统
沥青定量装车系统依靠高精度质量流量计的前、后累积量通过控制仪器来实现装车,到量后阀门自动关闭,其流量读数可以作为贸易交接的数据,方便、快捷。
2.1 沥青定量装车系统带来的好处有以下几点:
(1)对质量流量计进行数据采集,保证计量数据准确性,可以省去过衡过程。
(2)提高定量控制准确度,实发量与预发量控制精度为±20KG,提高工作效率并减少财务结算的工作量。
(3)实现装车计算机信息化管理,并具备同公司计量管理系统数据通信接口。
(4)实现装车过程在线监控功能,各类运行数据可实现历史数据存贮和历史曲线查询。便于计量数据溯源并具备同DCS进行通信接口(接口标准MODBUS485)
(5)将流量计数据采集到九江石化计量系统,并完善票据打印功能。
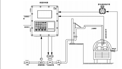
2.2 定量装车系统结构图及操作
单套装车系统基本配置:批量控制器 1 台、质量流量计 1 台、气动数控阀 1 台、静电保护器 1 套、温度溢油保护 1 套、紧急停车装置 1 套、外置声光报警器 1 台

批量控制器接受工作人员在上位机手动输入的预装量,经现场工作人员确认(应发量和车号)无误后,按确定键启动装车,这时批量控制器会通过采集到的质量流量计数据中的温度值判断是否达到设定的允许装车温度,温度达到,批量控制器输出启动信号打开阀门,开始采集流量计数据。批量控制器会按照程序自动调节阀门装车,当实发量到达预装量时关闭阀门,本次装车结束。期间如果有静电报警、溢流报警时,系统会自动停止装车,待报警处理完成后,可手动再次启动装车。现场同时具备紧急停车功能,当现场出现紧急情况时,可按下紧急停车按钮,待处理完紧急情况后,可手动再次启动装车。
3.科氏力质量流量计在定量装车中的作用
由沥青定量装车系统可以看出质量流量计在这套系统中起着决定性的因素,因此质量流量计的好坏、精度高低就成为了这套系统的重点,我厂选用艾默生 CMF 系列的质量流量计,可以准确实现贸易数据计量。
3.1 科氏力质量流量计的原理与结构科氏力质量流量计原理与结构

(1)驱动线圈与磁铁配合使用,使科里奥利传感器流量管发生振动。线圈驱动后,会使流量管以其谐振频率进行振动。流量管的两侧安装有检测线圈及其磁铁构成的电磁检测器。电磁检测器会产生一个代表振动管在该位置上的流量和位置的信号。当介质通过振动的流量管时,两根流量管的入口侧管和出口侧管都会产生科里奥利力。这些力会使流量管彼此相对扭曲振动。从流量管入口侧流入的质量流会产生一个科里奥利力,该力会抵制流量管振动。当质量流过出口侧管时,科里奥利力则会加强流量管的振动。在入口和出口侧的科里奥利力方向相反,从而导致了流量管产生扭曲运动,正是利用这一运动来测量质量流量。由于流量管的扭曲,使入口侧与出口侧的运动不同,因此检测组件上产生的正弦波便出现了不同步的现象,即两个正弦波出现了时间延迟(相位差)。两个正弦波间的时间延迟称为相位差,单位为微秒。相位差与质量流量成正比。科里奥利力越大,产生的相位差也越大,质量流量也越大。


从式(2)可以看出,科氏力质量流量计是直接测量流体的质量流量,传感器的流量系数是在出厂的时候通过标准装置进行标定得到,是一个常数,流体的质量流量和左右检测线圈的相位差成正比,因此,质量流量计可以满足此系统的计量称重。
3.2 定量装车系统的特点从流量计到批控器、到装车上位机,其计量结算数据仅采用了流量计采集的原始累积数据。具有以下几个特点。
(1)在整个数据传递应用过程中,没有任何的附加误差。
(2)在系统的各个节点设备(流量计、批控器、装车上位机),均具备计量数据存储功能,并做到不能人工清除或修改。
(3)在系统的各个节点设备之间,数据全部采用数字通讯方式,并且具备故障发生时数据等待,故障消失通讯恢复时数据自动上传的功能。
3.3 投用效果比对
为了检查定量装车系统的准确度,我们将几批过衡数据与装车数据进行了比对,比对结果如下:
序号 | 车号 | 表量(吨) | 衡量(吨) | 预装量(吨) | 误差 |
1 | 赣 A-C8959 | 40.019 | 40.010 | 40.000 | -0.0002% |
2 | 赣 A-C0539 | 50.014 | 50.000 | 50.000 | -0.0280% |
3 | 鄂 H-0B651 | 35.480 | 35.500 | 35.500 | 0.0005% |
4 | 赣 C-L8437 | 34.086 | 34.140 | 34.000 | 0.1581% |
5 | 赣 A-C8813 | 39.983 | 40.000 | 40.000 | 0.0425% |
由此对比结果可以看出:定量装车系统完全可以取代原来的装车模式,其误差均在规定的 0.2%以内,为了监督流量计的精度,我们定期会对装车数据进行核查,以此来保证这套系统的正常运行。
4.结束语
沥青定量装车系统在我厂是第一次使用,此系统运用效果良好的话,会为以后的自动化装车系统打下良好的基础,即使用 IC 卡刷卡系统刷卡装车,全程不需要人工干预。